
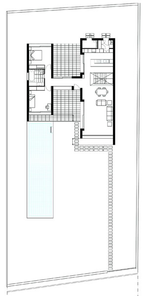
No cuenta ni con pasillos, ni con puertas para dar sensación de que el espacio fluye y es más grande.
Formado por dos bloques que están unidos por el recibidor - entrada que hace las veces de pasillo, y los comunica. Además interactua con el exterior, a través de grandes ventanales que permiten unas vistas increíbles y la entrada de luz natural.




No hay comentarios:
Publicar un comentario